三亿在线(中国)唯一官方网站国际
关键词搜索
language
中文
English
三亿在线(中国)唯一官方网站
产品中心
自主研發
代理品牌
快速夹钳
夹具油压缸
夹具气压缸
液压站
零点定位
中国台湾盈锡精密螺母
中国台湾东培精密轴承
德国哈尔德系列
中国台湾弘旺联轴器
最新消息
三亿在线(中国)唯一官方网站小百科
应用实例
下载中心
联络我们
0769-389-37833
0769-389-37833
三亿在线(中国)唯一官方网站
产品中心
产品中心
前往页面
快速夹钳
夹具油压缸
夹具气压缸
液压站
零点定位
中国台湾盈锡精密螺母
中国台湾东培精密轴承
德国哈尔德系列
中国台湾弘旺联轴器
最新消息
三亿在线(中国)唯一官方网站小百科
应用实例
下载中心
联络我们
产品中心
产品中心
夹具油压缸
螺杆
配件
CFVA
产品中心
夹具油压缸
螺杆
配件
CFVA
CFVA
产品资讯
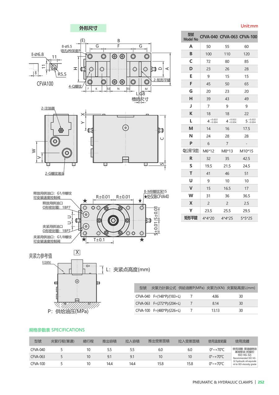
二滑块同步油缸,具有高精度重複定位行程。传动面经硬化及精密研磨,并直接润滑。高夹持精度,防尘效果特佳。
最大操作压力:70 kgf/cm²
最小操作压力:15 kgf/cm²
注意事项:
夹紧及放松作动速度需适当放缓。
可接受订製,欢迎与本公司洽询。
订购标示法
(例如:
CFVA-063
)
CFVA
系列
CFVA
063
缸径
040, 063, 100
产品资料
型号
CFVA-040
CFVA-063
CFVA-100
夹紧力计算公式
F=(148*P)/(183+L)
F=(272*P)/(204+L)
F=(480*P)/(226+L)
供给油压(MPa)
7
7
7
夹紧力(KN)
4.86
8.14
13.13
夹紧点高度L(mm)
30
30
30
夹紧行程(单边)
5
5
5
总行程
10
10
10
推出容积
5.5
9.1
14.4
拉入容积
5.5
9.1
14.4
推出受压面积
6
10
15.8
拉入受压面积
6
10
15.8
使用温度范围(°C)
0~+70°C
0~+70°C
0~+70°C
档案下载
CFVA-040
CFVA-063
CFVA-100
CFVA-040
CFVA-063
CFVA-100
PDF
PDF
PDF
PDF
PDF
PDF
为了改善并给您更好的浏览体验,本网站使用Cookies来了解您如何使用我们的网站。若继续浏览我们的网站,即表示您同意我们使用Cookies。若您想了解相关资讯,请点
这里
同意
ld官方网站
|
中欧官方网站_中欧(中国)
|
爱体育·体育(中国)官方网站
|
万搏登陆_万搏(中国)
|
乐竞在线(中国)唯一官方网站
|
ky开元
|
球友会网页版_球友会(中国)官方
|
压球官网·(中国)官方网站
|
米兰体育在线网站_米兰体育(中国)
|